| 価格 | 4,650万円 ![]() |
||||||
|---|---|---|---|---|---|---|---|
| 所在地 | 兵庫県西宮市川東町
この地域周辺の物件を見る |
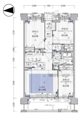
専有面積 | 62.06u | 間取り | 3LDK (-) | ||
| 交通 |
阪神本線 香櫨園 徒歩5分
|
管理費等 | 10,490円 | 修繕積立金 | 8,070円 | 所在階/階数 | 3階/地上6階建 | 築年月 | 2018年1月築 | バルコニー面積 | 10.27m² |
| 間取り | 3LDK (-) | ||||||
電話をかける(携帯・PHS可)
0120-021-540
「ホームページを見た」とお伝え下さい。
お問い合わせ番号をお伝えください
RHS-191601-1564
| 特徴 |
|
|---|---|
| セールスコメント | - |
| 採光面 | 西 | 取引態様 | 仲介 |
|---|---|---|---|
| 現況 | 居住中 | 引渡し | 相談 |
| 総戸数 | 29戸 | 構造 | RC造 |
| テラス面積 | - | 専用庭面積 | - |
| 駐車場 | 空無 | 駐輪場 | - |
| 建物権利 | - | 土地権利 | 所有権 |
| 用途地域 | - - - | 管理態様 | 管理形態:委託(通勤) 管理組合:なし 管理会社:和田興産 |
| 情報更新日 | 2025年12月05日 | 次回更新日 | 2026年01月05日 |
| 小学校区 | 西宮市立香櫨園小学校 (兵庫県西宮市) この学区の他の物件を見る |
中学校区 | 浜脇中学校 (兵庫県西宮市) この学区の他の物件を見る |
|---|
電話をかける(携帯・PHS可)
0120-021-540
「ホームページを見た」とお伝え下さい。
お問い合わせ番号をお伝えください
RHS-191601-1564
| 価格 | 万円 | ||
|---|---|---|---|
| 年利率 | % |
||
| ボーナス払い | 返済年数 | ||
| 頭金 | 直接入力する | 万円 | |

毎月のご返済額 |
ボーナス(×年2回) |
物件価格4,650万円 |
電話でお問い合わせ
センチュリー21グランクリエーション
|
電話をかける 0120-021-540 ※「ホームページを見た」とお伝えください。 |
お問い合わせ番号をお伝えください RHS-191601-1564 |
|---|
ご売却・買取の
ご相談もお任せください。
お客様に合わせた
ご提案をいたします。
-